SUN CITY

NAME: Sun City
COUNTY: Hillsborough
ROADS: 2WD
GRID: 3
CLIMATE: No Problem
BEST TIME TO VISIT: Any time, It's Florida
COMMENTS: Take Hwy 41 South in Southern Hillsborough County. After you cross the Little Manatee River look for the sign Sun City. Take fork to the right. All there is left, other than trailers, is the large power station right in front of you. There is also an old gas station directly across from the power station. Check out the "filled in" fountain next to the power station.
REMAINS: 1920's power station, fountain remains, gas station.

When the town of "ross" was caught up in the boom of the 1920's, its name was changed to "sun city" and a motion picture studio was built in hopes of enticing the film industry. Sun city is a relic to the building boom of those years. Across hwy 41 you can find a plot of streets with street names for old silent movie stars. This is not to be confused with sun city center, a retirement community. Submitted by: Mike and Aaron Woodfin

Back in 1925, old Sun City came into being about 3 miles south of Ruskin. Sun City was promoted as “Florida’s Moving Picture City” and enticed buyers with the prospect of living among stars of the silver screen. As part of this promotion, streets were named for prominent film stars, directors and studios of the period. Many of the streets still exist and here-and-there you can still see the curbing from 1925. My favorite street is Blythe Avenue. Betty Blythe was known in the silent screen era for her very revealing costumes. But most modern day folks would know her as the elegant Queen of Transylvania in the embassy ball scene in My Fair Lady where she stops and addresses Audrey Hepburn with “Charming, quite charming.”
Back in 1925, the Sun City developer also spent $300,000 to build a 70 by 190 foot movie studio, described as: “This building, of Spanish-Moorish architecture, is of steel construction and fireproof throughout, with walls of brick and tile overlaid with stucco and having an attractive mother of pearl finish. No expense was spared to make this studio both beautiful and practical. In addition to the four business offices, there are vaults, cutting room, developing facilities, projection room, spacious carpenter ship and property room, and a score of dressing rooms, baths and waiting rooms. A departure from the conventional studio is the visitors’ gallery, from which guests may witness filming of the silver screen celebrities and any studio work. The lofty tower affords a splendid view of the entire town, the glistening waters of Tampa Bay and the Little Manatee, and of the surrounding woodlands in all directions.”
After the Florida land-bubble burst in 1932, the development went under - and the movie studio was razed. The road back to the current Hide-A-Way RV camp is built on the right-of-way for the boulevard that led back to the studio.
There was also a $100,000 power plant to supply electricity to the community and the movie studio. After Sun City went bust, the power plant equipment was sold to Boca Grande. The power plant building still exists as an antique business on the west side of Route 41. It’s the building with the tall windows that have arches at the top. - Courtesy Dave Brown


Ad to visit Sun City
Courtesy Dave Brown


From a U.S. Government aerial survey in 1937(?), "Foundation 2" shows the school at the bottom
Courtesy Dave Brown


Outline of the foundation of the studio at bottom right
Courtesy Dave Brown


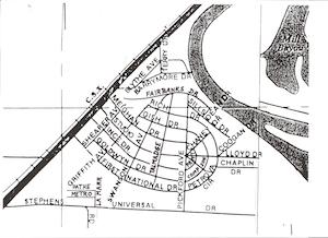
Streets as of 1925
Courtesy Dave Brown


Sun City today
Courtesy Dave Brown


School
Courtesy Dave Brown


Power Plant
Courtesy Dave Brown


Power Plant which is now an antique store
Courtesy Dave Brown


Power Plant
Courtesy Dave Brown


Sun CIty Street sign
Courtesy Mike and Aaron Woodfin


Old Power Station
Courtesy Mike and Aaron Woodfin


Jones Place Today
Courtesy Mike Woodfin


Jones Place, a grocery store, gas station and U.S. Post Office, was built in 1928. Can you see the roadster at the pump? (photo courtesy of Hazel Jones)


Sun City
Courtesy Mike Woodfin


Sun City School - Burned 1972
Courtesy Mike Woodfin


Sun City School - Burned 1972
Courtesy Mike Woodfin


Sun City School - Burned 1972
Courtesy Mike Woodfin


Sun City School - Burned 1972
Courtesy Mike Woodfin


Dedication of the Studio
Courtesy Dave Brown

Sun City (Ross)

Little Manatee River

5 pgs

The following is an excerpt from:

HILLSBOROUGH COUNTY HISTORIC RESOURCES SURVEY REPORT

Submitted to:

Florida Department of State Bureau of Historic Preservation

October 1998

Prepared by:
Hillsborough County Planning & Growth Management 601 East Kennedy Boulevard, P.O. Box 1110, Tampa, Florida 33601

* These excerpts have been taken from the Historic Resources Survey Report with permission given by the Hillsborough County Historic Resources Review Board on December 15, 2003. The intention is to help provide targeted historical information on the water bodies in Hillsborough County.

1

Sun City (Ross)

Not to be confused with Sun City Center, the 1960s retirement development, Sun City’s genesis came about during the height of the Florida land boom, replacing another settlement known as Ross. Situated below Ruskin on the south side of the Little Manatee River, Ross was a small community even by rural Hillsborough County standards. A few families scratched out a living in the rattlesnake infested scrub and pine flatland of southwest Hillsborough County in the 19th and early 20th Centuries. The Buzbee family moved from Alabama in the 1880s and settled near the Little Manatee River. Farming the land, the Buzbees raised enough hogs and grew enough corn, sweet potatoes, peas, melons, sugar cane, and rice to feed a family of nine. This was all done with two oxen and a horse. The family consumed nearly everything grown or raised, converting sugarcane into sugar for sweet cakes or into molasses. After the Buzbees slaughtered a hog, they smoked the meat to keep it from spoiling. Occasionally, the Buzbees would take potatoes to Tampa and sell them for 25 cents a bushel, providing the family with a little income. Houses were lit by kerosene lamps and food cooked on woodstoves. If a family member became ill, herbs were utilized to cure the sick person. In some circumstances the family called upon Doctor Simms, a local family doctor who lived in the woods near the Buzbees. Despite being scattered across the countryside, area residents would gather together to help with shucking corn, to fish in Tampa Bay, to go to church, or to attend dances. In many instances, community activities were of both a practical and social nature, such as combining the need to shuck large amounts of corn with games for the children.i

In 1915, E.C. McClean, a prosperous Palmetto citrus and vegetable farmer, purchased 700 acres in southwest Hillsborough County, including most of Ross. Knowing that artesian water underlaid much of the land, Mr. McClean bought the land to begin truck farming upon. Clearing a portion of the property and growing crops, McClean found it impractical to transport his produce to Palmetto by mules and wagons across the twenty miles of sand roads covered by water much of the year. Two years later the Atlantic Coast Line Railroad came through, allowing McClean to return to his farm where he grew tomatoes, bell peppers, cukes, and cabbage. He built homes for his workers and a packing shed near the railroad line. He also established Hillsborough’s first tomato packing house, shipping his produce brand “Buck of Cockroach Bay” to northern consumers.ii

The railroad brought in other business interests, including a crate veneer mill built by the Florida Citrus Exchange. The mill brought new people into the area, including George Willis, a Tennessee sharecropper, who moved to Ross to build houses for the mill workers. Approximately twenty houses were built, housing both Black and White workers. Not surprising with such an increase in population Ross received a post office on March 18, 1919. Mill workers began cutting down the region’s large expanses of pine trees to make citrus shipping boxes. Income from the mill supported two general stores and a notary. When the mill depleted its lumber supply in the mid-1920s, the company left, leaving most of the houses to its former White employees. Living close to the bay, they turned to commercial fishing for a living. Most of the African American workers

2

left for Palmetto, laboring in the turpentine woods and in area farms.iii

With the mushrooming of land prices during the 1920s, almost any stretch of Florida property became a real estate prospector’s dream. Such was the case with Ross. J.H. Meyer, a Miami realtor, and H.C. Van Swearingen, a Cleveland railroad investor, joined forces and bought approximately 500 acres of land in and around Ross in Township 32 South, Range 18 East, Sections 23 and 24. Forming the Sun City Holding Company, based in Bradenton, Florida, J.H. Meyer was the company’s sales manager. On May 25, 1925, E.W. Darling, a trustee of the Sun City Holding Company and Manaboro Land Company, filed Sun City’s plat. Situated on the southwest bank of the Little Manatee River, Sun City included land for a school, hotel, theater, church, city hall, and a studio park. Meyer promoted Sun City as “Florida’s Moving Picture City,” enticing buyers with the prospect of living among stars of the silver screen. As part of this promotion, streets were named for prominent film stars, directors, and studios of the period: [Mary] Pickford Avenue, [Charlie] Chaplin Drive, [Douglas] Fairbanks Drive, [King] Vidor Avenue, Fox Place, Metro Drive, and Universal Drive.iv The company also spent $300,000 to build a 70 by 190 feet movie studio, described as:

This building, of Spanish-Moorish architecture, is of steel construction and fireproof throughout, with walls of brick and tile overlaid with stucco and having an attractive mother of pearl finish. No expense was pared to make this studio both beautiful and practical. In addition to the four business offices, there are vaults, cutting room, developing facilities, projection room, spacious carpenter ship and property room, and a score of dressing rooms, baths and waiting rooms. A departure from the conventional studio is the visitors’ gallery, from which guests may witness filming of the silver screen celebrities and any studio work. The lofty tower affords a splendid view of the entire town, the glistening waters of Tampa bay and the Little Manatee, and of the surrounding woodlands in all directions.v

Other improvements included sidewalks, underground wiring and piping, a water tank, a $100,000 power plant, and a school. On October 8, 1925, nearly 1500 people watched as Tampa’s mayor Perry G. Wall led the dedication ceremonies for the opening of the movie studio. Other attendees included Harry Hiscox, a director of comedies, Billie Moon, a 320-pound comedian, and Miss Bessie True, actress. Moon and True appeared in two short movies made in the new studio, the only movies ever produced in Sun City. People swallowed the movie promotional scheme hook, line, and sinker. With offices in Tampa, St. Petersburg, Orlando, Bartow, Lakeland, Bradenton, Sarasota, Plant City, and Sun City, the Sun City Holding Company first offered for sale two hundred 60-by-140 foot lots for upwards to $1500. Many of the prospective buyers were brought to Sun City by boat from St. Petersburg. As people bought property, the Ross post office changed its name to Sun City on February 16, 1926. Land sales continued, totaling more than $1 million by the middle of 1926 with lots costing $3000 each. In 1928, Max Jones constructed a combination general store, gas station, post office, and living quarters across the street from the power plant. Mr. Jones, however, built his structure as the sun was setting on this Hollywood dream.vi

3

Born out of the Florida land boom, Sun City began to wither as real estate values plummeted and dreams of Hollywood crashed to the ground. Only a few property owners built houses ranging in price from $35,000 to $75,000, but most of these were abandoned as the Great Depression set in. In foreclosure of a $50,000 mortgage, W.W. Staplen of Orlando had Sun City sold on the steps of the Hillsborough County courthouse on July 4, 1932. Interestingly, no one showed up for the auction, so Mr. Staplen bought the entire community, with the exception of the ice plant, for $100. Staplen still owed state and county taxes on the property and he planned on paying those debts by dismantling the power plant and water works and selling the pieces to any takers. The movie studio was razed and the bricks sold for $1500, the water pipes were sold for scrap, the city of Port Tampa purchased the water tank, and the power plant equipment was moved to Boca Grande after supplying power to Ruskin for several years. The Sun City school had been donated to the county and operated as a Black school until integration, whereupon it was shutdown. The building was sold and operated as a controversial labor camp with charges of slavery being claimed against the owners. In 1972 the building burned to the ground.vii According the Federal Writers’ Project, just a shell of the city remained by the late 1930s:

Sun City...(85 pop.), a ghost town in the flatwoods, was founded at the height of the boom in 1924 by promoters with confident hopes of luring the motion-picture industry to Florida. The large studio built at that time is now occupied by the Sun City School. When Sun City was yet a glowing dream, there hung in the studio an oil painting of the metropolis as it would appear when it had supplanted Hollywood. A number of weathered gray shacks in a state of disrepair are occupied by Negroes. The little railroad station with a still-bright sign reading ‘Sun City,’ a large gray powerhouse, and a long warehouse are falling to ruin; nothing else remains. The flatland on every side are overgrown with palmetto and scrubby grass.viii

This is not the end of the Sun City saga. In 1938, J.T. Fleming, a Georgia born cotton stocking manufacturer, fertilizer salesman, real estate man, and inventor, stepped into the picture and began buying Sun City lot by lot, having his own dreams of fortunes. During the next 15 years Mr. Fleming acquired approximately 500 acres and tried to re-plat much of it, but to no avail. He was almost a permanent fixture at county commission meetings. When he met roadblocks there, he filed lawsuits against the Florida road department, the county commission, the school board, and the President of the United States. Mr. Fleming was committed to a psychiatric hospital in 1953 where he passed away in 1968. Much of the property reverted back to the county for delinquent taxes and eventually resold. By the mid-1970s, a few mobile home parks established residence in the area. Marshall Jones, Max Jones’ son, operated the Sun City post office and delivered mail to the community’s 500 residences, many of whom either farmed or worked jobs in other areas. By the late 1990s, approximately 4000 people call Sun City home, many of whom are retirees living in mobile homes or recreation vehicles. All that is left of the 1920s Sun City is the power plant which serves as a storage place for Speedling Inc., the region’s largest employer and maker of containerized vegetable

4

plants. Max Jones’ general store/post office and one of the 1920s model homes also survive as private residences. Even the streets are hard to discern due to the heavy overgrowth.ix

i.Ann Ahern, “Nebraska can Tell You a Few Things About Living,” Tampa Times October 15, 1973, 1B,2B; Clarence Harding, “Sun City is Now Content to Watch World Speed By,” Tampa Times December 24, 1971; “Sun City of Early ‘20s was to be Movie Colony,” Bradenton Herald September 26, 1971.

ii.ibid.; Ann Ahern, “Depression Darkened Old Sun City’s Dream,” Tampa Times October 15, 1973, 1B.

iii.Bradbury and Hallock, A Chronology of Florida Post Offices, 81; Florida State Gazetteer and Business Directory, 1925, 788-789; Harding, “Sun City is Now Content to Watch World Speed By;” Lindsay Peterson, “Sun City Families to Reunite,” Tampa Tribune May 11, 1993; “Sun City of Early ‘20s was to be Movie Colony.”

iv.Leland Hawes, “Film Industry in old Sun City a Dim Memory,” Tampa Tribune November 19, 1995, 1- Baylife; Margaret Van Petten, editor, Rinaldi’s Official Guide of South Florida, 1925-1926 (Tampa, Fl: Rinaldi Printing Company, 1925), 122-125.

v.Petten, Rinaldi’s Official Guide of South Florida, 1925-1926, 123.

vi. Ahern, “Depression Darkened Old Sun City’s Dream,” 1B; Bradbury and Hallock, A Chronology of Florida Post Offices, 81; “Giant Power Plant Purchased for Development at Sun City,” Plant City Courier January 17, 1926; Harding, “Sun City is Now Content to Watch World Speed By;” Hawes, “Film Industry in old Sun City a Dim Memory,” 1-Baylife; “Movie Studio Near City to be Dedicated,” Tampa Daily Times October 8, 1925; Richard Alan Nelson, Florida and the American Motion Picture Industry, 1898-1980, Volume I (NY: Garland Publishing, Inc, 1983), 299-302; Barbara Reichle, “Inside It’s Still a Post Office,” Tampa Times August 3, 1976.

vii. Ahern, “Depression Darkened Old Sun City’s Dream,” 2B; Margie Bradford,” Old Sun City Power Plant Once Regulated Town Life,” Tampa Times August 26, 1970; Federal Writers’ Project, Seeing Tampa, 121; “Proposed Movie Center of Boom Sold at Auction,” Tampa Times July 5, 1932; “Special Master’s Foreclosure Sale,” Tampa Times July 24, 1930; “Sun City, Boom Town, Sold for $100 at Auction,” Tampa Tribune July 5, 1932; Paul Wilder, “What Will Happen to the Boom Dream–Sun City?” Tampa Tribune March 29, 1953.

viii. Federal Writers’ Project, Florida, 404.

ix. Ahern, “Depression Darkened Old Sun City’s Dream,” 2B; Hawes, “Film Industry in old Sun City a Dim Memory,” 1Baylife; Reichle, “Inside It’s Still a Post Office”; Wilder, “What Will Happen to the Boom Dream–Sun City?”

5

 BACK